Cadence - Ascend Apartments
Henderson, NV
Overview
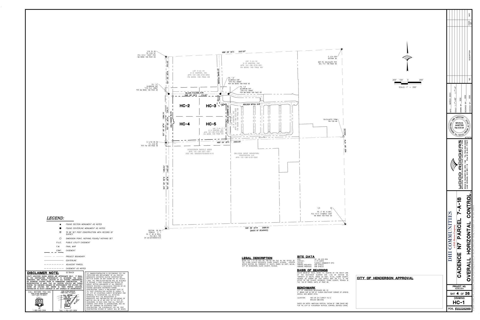
Tamarack's first project in the state of Nevada is an addition to the master-planned community, Cadence , in Henderson. A multi-family, 312-unit complex will be built on 11 acres by DHI Communities in 2025. Residents of the new apartments will enjoy all Cadence - Ascend Apartments has to offer, including convenient access to schools, shopping, dining, parks, pools, and trails.
project start
Summer 2024
total acres
11
property Type
Multi-family
Number of lots
312
Additional Information
project video




